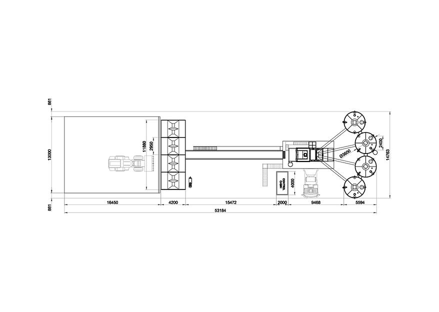
Стационарный бетонный завод ELKOMIX 160
Беру шарттары
Сипаттамасы
Сипаттамалары
- Производительность
- 140 м³/час
- Объём, двухвалкового бетоносмесителя
- 6000/4000 л
- Бункера инертных материалов 4×30 м³ рядные с возможностью увеличения
- Панели бункеров изготовлены из прокатного стального листа толщиной 5-6 мм. Раскрой и сварка деталей осуществляется роботом
- Наклонный конвейер 12.5 м
- Шевронная лента, щетка очистки ленты с приводом, конвейер оснащен направляющими роликами, дорожками обслуживания, тросом аварийного отключения, конвейер имеет бортики для предотвращения просыпания материалов
- Дозатор для воды 0-1200 кг
- Оцинкованная ёмкость с системой компенсации гидроудара DAF (Германия), для регулирования давление воды в системе, позволяет увеличивать срок службы труб и соединений
- Дозатор цемента 0-3000 кг
- Оптимален для выпуска высокомарочного бетона с высоким содержанием цемента
- Дозатор химдобавок 0-50 л, два вида
- Две оцинкованные ёмкости с двумя насосами
- Дозатор для заполнителей 0-9000 кг
- Оснащен высокоточными тензодатчиками
- Устройство сжатого воздуха
- Компрессор HERTZ (Германия), пневматическая система, система клапанов и пневмоцилиндров
- Металлическая опорная конструкция
- Опорные конструкции служат для установки и размещения смесителя, дозаторов, а также лестниц и платформ
- Электронная система взвешивания
- Система из тензодатчиков и преобразователей, все контакторы SIEMENS
- Кабина оператора и контрольная панель
- Оборудована кондиционером, системой отопления, в ней находится пульт управления и компьютерная система
Документы
ДЕКЛАРАЦИЯ СООТВЕТСТВИЯ
949 КБ
PDF
Сізге арналған ұсынымдар
Тұрақты ұсыныс, даналап
Клавиатура Keychron K2 84 Key Aluminum Frame Hot-Swap Gateron RGB Redг Алматы, ул Карасай Батыра≈RUB 6,547Тұрақты ұсыныс, даналап
Повторитель беспроводного сигнала MERCUSYS ME60X, белыйМосква, 1-ая ДубровскаяRUB 3,360Тұрақты ұсыныс, даналап
Гайковерт бесщеточный ProfiPower BLDTW-18V (Li-ion-2шт, 2.0Ач, 330Нм,З/У,в коробке)Россия, Санкт-ПетербургRUB 8,294
Подборки товаров в категории Конвейерное оборудование
Дробильно-сортировочное оборудованиеРоликовые конвейерыГидроциклоныПресс - ГрануляторДозаторы автоматическиеПокрасочные камерыЛавные скребковые конвейерыКовшовые конвейерыЦентрифугиКонвейерные ленты и плоские транспортерные ремниЛенточные конвейерыГрунтосмесительные установкиАсфальтобетонные заводыКомплектующиеДля выдува тарыЛинии грануляцииКонвейерное оборудованиеЭлектрогидравлические прессыСкребковые конвейерыНатяжные станцииВиброоборудованиеАсфальтовые заводыВинтовые конвейерыЛенточные конвейерыКонвейеры пластинчатыеКомплектующие для конвейеровОборудование для розлива жидкостейСушильное оборудование Укупорочные машиныФормовочные автоматыЦепные конвейерыЖелобчатые конвейерыЧиллерыПластинчатые конвейерыПитателиАвтоматизированные заправочные стендыЛинии для производстваБетонные заводыСмесители промышленные













