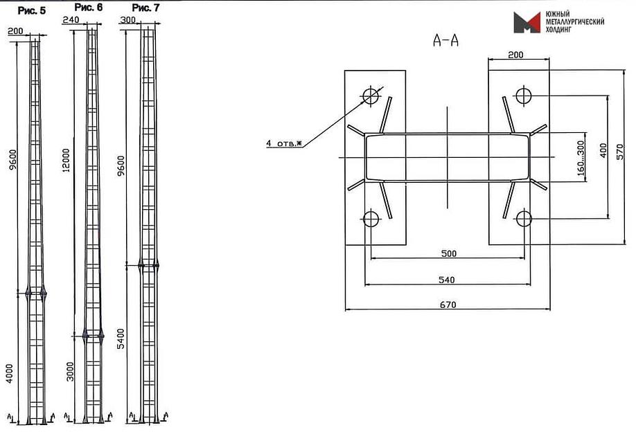
Стойки для опор контактных сетей МШП2 серия 6226и
Беру шарттары
Сипаттамасы
Сипаттамалары
- серия
- 6226и
- вид
- МШП2
- покрытие
- оцинкованная
Сізге арналған ұсынымдар
Тұрақты ұсыныс, даналап
Биологически активная добавка Fohow капсулы «Сюэчинфу Фохоу» ОПТРоссия, МоскваСұраныс бойыншаТұрақты ұсыныс, даналап
Краска для бетонный полов БЕТОНИТ (Kraskoff Pro) RAL 704025кгРоссия, МоскваСұраныс бойынша














