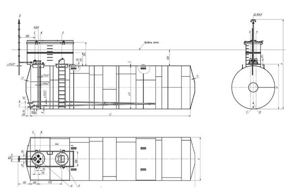
Резервуар горизонтальный подземный РГСПп-50
Транспортные компании
Беру шарттары
Сипаттамасы
Сипаттамалары
- Аудиторлық тексеру
- Орындалмаған
- Объем
- 50000 м³
- Масса
- 8005 кг
- Модель
- РГСПп-50
- Тип
- Горизонтальный, подземный
- Гарантия
- 1 год
- Материал
- Сталь
Документы
ОПРОСНЫЙ ЛИСТ НА РЕЗЕРВУАР
914 КБ
PDF
СЕРТИФИКАТ ИНТЕРГАЗСЕРТ
350 КБ
PDF
СВИДЕТЕЛЬСТВО ОБ ОЦЕНКЕ ДЕЛОВОЙ РЕПУТАЦИИ
289 КБ
PDF
ДЕКЛАРАЦИЯ О БЕЗОПАСНОСТИ МАШИН И ОБОРУДОВАНИЯ
381 КБ
PDF
ДЕКЛАРАЦИЯ О БЕЗОПАСНОСТИ ОБОРУДОВАНИЯ, РАБОТАЮЩЕГО ПОД ИЗБЫТОЧНЫМ ДАВЛЕНИЕМ
216 КБ
PDF
СВИДЕТЕЛЬСТВО О ДОПУСКЕ
131 КБ
PDF
Сізге арналған ұсынымдар
Тұрақты ұсыныс, даналап
Резервуар горизонтальный стальной двустенный РГД-50Россия, Свердловская областьСұраныс бойыншаТұрақты ұсыныс, даналап
Накопительная ёмкость Gidrolica Tank Water горизонтального типа 2490×6650 ммРоссия, Московская областьСұраныс бойынша
Подборки товаров в категории Ёмкости
КанистрыРезервуары для воды Ёмкости технологическиеСборные резервуарыЦилиндрические резервуарыМеталлические резервуарыБункеры и силосыБаки-аккумуляторыВертикальные резервуары ВоздухосборникиСтроительные ёмкостиСилосы для цемента и сыпучих материаловВодонапорные башниПолевые склады горючего ПССборные ёмкостиБассейны для разведения рыбыКонденсатосборникиПожарные резервуарыТранспортные ёмкостиПищевые резервуарыМобильные растворные узлыРастворные узлыСистемы храненияСтационарные емкостиПластиковые емкостиБочки и бакиЕврокубыВедра, контейнеры и банкиКонусные


















