Проект дома «Финляндия M» white box
Транспортные компании
Беру шарттары
Сипаттамасы
Сипаттамалары
- Аудиторлық тексеру
- Орындалмаған
- Наружная отделка
- Имитация бруса с покраской в два слоя на производстве + профлист крашенный 0,45 мм
- Настил кровли
- Профлист крашенный 0,45 мм
- Двери
- ПВХ с усиленной фурнитурой
- Окна
- ПВХ, 2-х камерный стеклопакет, 4-х камерный профиль
- Материал каркаса
- Строганная доска камерной сушки
- Габариты каркаса
- 40х140 мм, шаг 590 мм
- Лаги пола и стропильная система
- Строганная доска камерной сушки
- Габариты лаги
- 40х190 мм, шаг 590 мм
- Утепление пола и потолка
- Isover 200 мм
- Звукоизоляция межэтажного перекрытия
- Isover 200 мм
- Утепление стен по периметру дома
- Isover 150 мм + панели GTS-9
- Внутренняя отделка
- Gyproc Strong 15 мм
- Звукоизоляция перегородок
- Isover 150 мм
- Терраса
- Деревянная террасная доска с покраской
- Водосточная система
- Металлическая на металлических кронштейнах
- Доставка и сборка
- Есть
- Коммуникации
- Отопление, вентиляция, водоснабжение и канализация, электрика, наружные коммуникации, бурение скважины, розетки и выключатели
- Чистовая отделка
- Натяжной потолок, стяжка пола, шпаклевка стен под обои
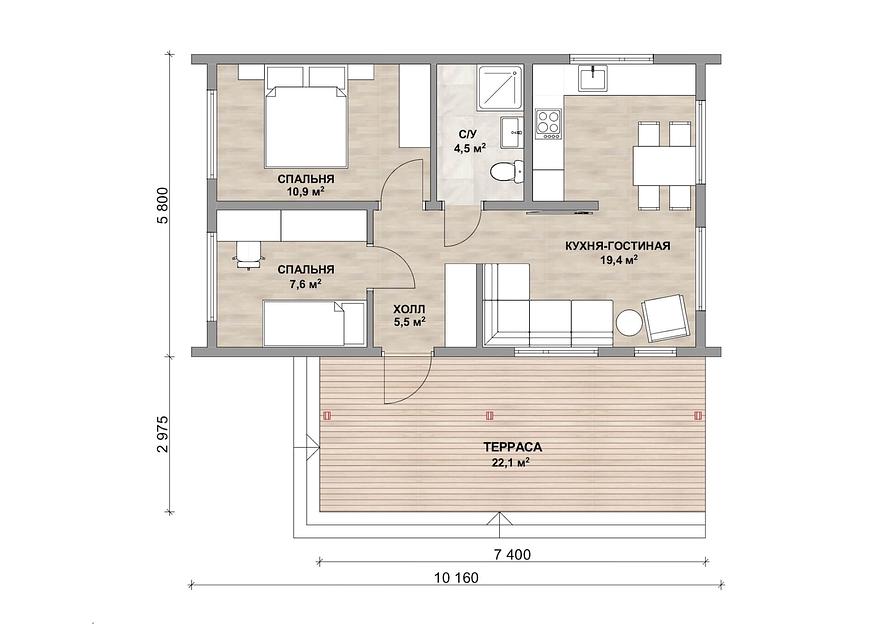
- Размеры дома
- 10х9 м
- Площадь дома
- 70 м²
- Комплектация
- White box
Сізге арналған ұсынымдар
Тұрақты ұсыныс, даналап
Индивидуальное проектирование и постройка домов под чистовую отделкуРоссия, УльяновскСұраныс бойыншаТұрақты ұсыныс, даналап
Устройство газонов Ленинградская областьРоссия, Ленинградская областьСұраныс бойынша



































