Проект дома «Прованс 24» базовая
Беру шарттары
Сипаттамасы
Сипаттамалары
- Наружная отделка
- Имитация бруса с покраской в два слоя на производстве + профлист крашенный 0,45 мм
- Настил кровли
- Профлист крашенный 0,45 мм
- Двери
- ПВХ с усиленной фурнитурой
- Окна
- ПВХ, 2-х камерный стеклопакет, 4-х камерный профиль
- Материал каркаса
- Строганная доска камерной сушки
- Габариты каркаса
- 40х140 мм
- Шаг каркаса
- 590 мм
- Лаги пола и стропильная система
- Строганная доска камерной сушки
- Габариты лаги
- 40х190 мм
- Шаг лаги
- 590 мм
- Утепление пола и потолка
- Knauf 200 мм
- Звукоизоляция перегородок
- Knauf 200 мм
- Утепление стен по периметру дома
- Knauf 150 мм + панели GTS-9
- Внутренняя отделка
- Gyproc Strong 15 мм
- Звукоизоляция перегородок
- Knauf 150 мм
- Терраса
- Деревянная террасная доска с покраской
- Настил пола
- Пластиковая на металлических кронштейнах
- Доставка и сборка
- Есть
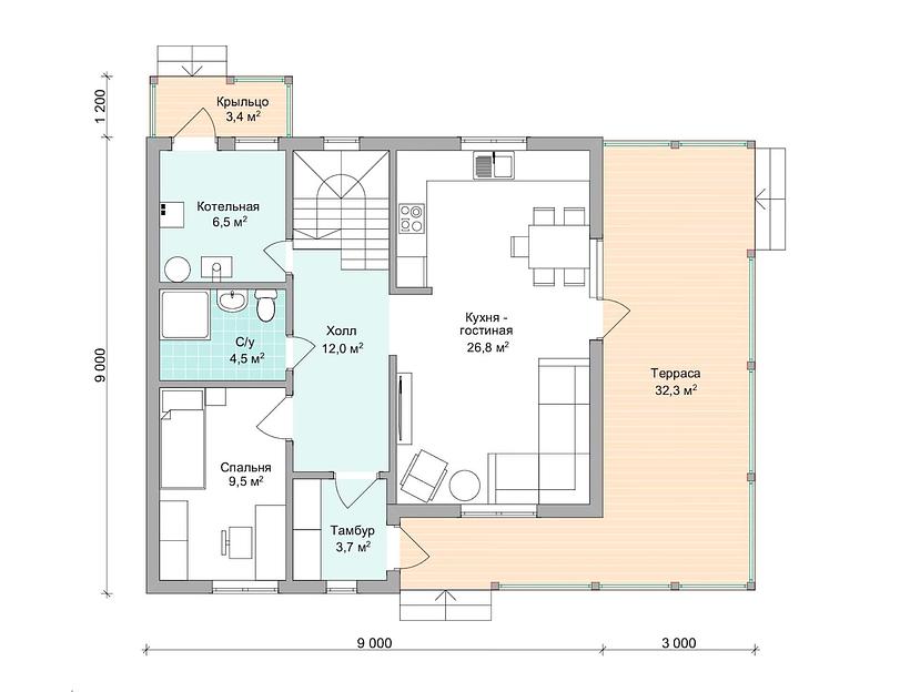
- Размеры дома
- 12х10,2 м
- Площадь дома
- 163 м²
- Комплектация
- White box
- Фундамент
- Забивные железобетонные сваи
- Внутренние перегородки
- По проекту
Сізге арналған ұсынымдар
Тұрақты ұсыныс, даналап
Пищевой рыбий жир в форме TG (standardized 18/12) стандартизированный с ПНЖК не менее 35%Россия, Магадан1 500 руб.Тұрақты ұсыныс, даналап
Пищевой рыбий жир в форме TG 1611 с ПНЖК не менее 30%Россия, МагаданСұраныс бойыншаЗапрос КП
Биг-бэг 2-х стропный б/у для переработкиРоссия, Челябинская областьЖдёт отклика Бюджет анықталмаған

















