Танк-контейнер 21 м³, 1,6 МПа
Транспортные компании
Беру шарттары
Сипаттамасы
Сипаттамалары
- Аудиторлық тексеру
- Орындалмаған
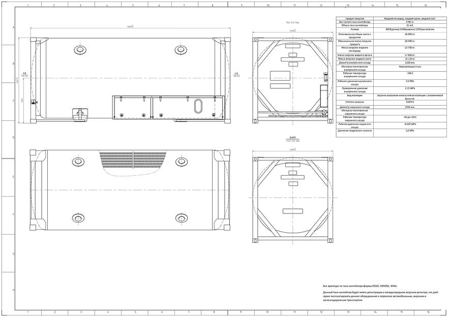
- Продукт загрузки
- Жидкий кислород, жидкий аргон, жидкий азот
- Вес пустого танк-контейнера
- 7700 кг
- Объём танк-контейнера
- 21 м³
- Длина
- 6058 мм
- Ширина
- 2438 мм
- Высота
- 2591 мм
- Максимальная общая масса с продуктом
- 36000 кг
- Максимальная масса загрузки продукта
- 28300 кг
- Масса загрузки жидкого кислорода
- 22700 кг
- Масса загрузки жидкого аргона
- 27800 кг
- Масса загрузки жидкого азота
- 16120 кг
- Диаметр внутреннего сосуда
- 2220 мм
- Материал изготовления внутреннего сосуда
- Нержавеющая сталь
- Рабочая температура внутреннего сосуда
- -196 °C
- Рабочее давление внутреннего сосуда
- 1,6 мПа
- Проверочное давление внутреннего сосуда
- 2,21 мПа
- Вид изоляции
- Экранно-вакуумная многослойная изоляция с алюминиевой фольгой
- Степень вакуума
- 0,08 Па
- Диаметр наружного сосуда
- 2416 мм
- Рабочая температура наружного сосуда
- -40...+50 °C
- Рабочее давление наружного сосуда
- -0,103 МПа
- Давление подрывного клапана
- 1,6 МПа
Сізге арналған ұсынымдар
Тұрақты ұсыныс, даналап
Танк-контейнер для перевозки жидкого кислорода Т75Россия, Иркутская областьСұраныс бойыншаТұрақты ұсыныс, даналап
Танк-контейнер T-50 для транспортировки и хранения пропана техническогоРоссия, Иркутская областьСұраныс бойынша























