Стационарный бетонный завод ELKOMIX 60
Условия передачи
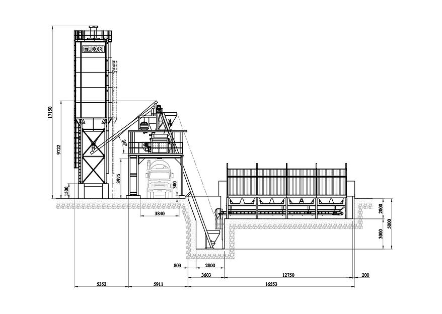
Описание
Характеристики
- Производительность
- 50-55 м³ в час
- Объём двухвалкового бетоносмесителя
- 1500/1000 л
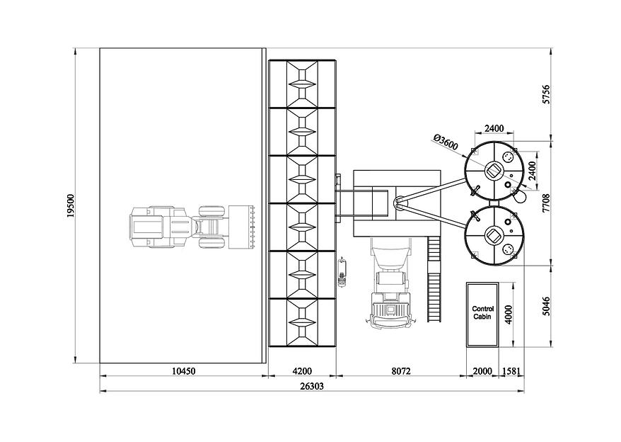
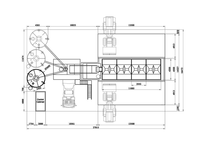
- Бункера инертных материалов 4×30 м³ рядные с возможностью увеличения
- изготовлены из гофрированного метала с ребрами жесткости. Раскрой и сварка осуществляется высокоточным роботом
- Наклонный конвейер 26° или скиповый подъёмник 1.3 м³
- приёмный бункер-накопитель аккумулирует отдозированные материалы, что сокращает процесс дозирования. Скиповый подъемник обеспечивает подачу щебня и песка в смеситель, оснащен двухскоростным двигателем
- Дозатор для воды 0-300 кг
- оцинкованная емкость. Дозатор для воды оснащен системой компенсации гидроудара DAF (Германия). Оснащен системой подачи воды под давлением через форсунки
- Дозатор цемента 0-700 кг
- шарнирное соединение тензодатчиков позволяет достигнуть точной дозировки; шланг-компенсатор (Германия) избыточного давления. Выгрузка цемента в смеситель осуществляется с помощью двух электропневматических поворотных заслонок
- Дозатор химдобавок 0-25 л, два вида
- две оцинкованные ёмкости, позволяют дозировать независимо две химдобавки
- Дозатор для заполнителей 0-6000 кг
- оснащен высокоточными тензодатчиками
- Устройство сжатого воздуха
- компрессор HERTZ (Германия), пневматическая система, система клапанов и пневмоцилиндров
- Металлическая опорная конструкция
- опорные конструкции служат для установки и размещения смесителя, дозаторов, а также лестниц и платформ
- Электронная система взвешивания
- система из тензодатчиков и преобразователей, все контакторы SIEMENS
- Кабина оператора и контрольная панель
- оборудована кондиционером, системой отопления, в ней находится пульт управления и компьютерная система
Документы
ДЕКЛАРАЦИЯ СООТВЕТСТВИЯ
949 КБ
PDF
Рекомендации для вас
Постоянное предложение, поштучно
Пищевой рыбий жир rTG 4020 с ПНЖК не менее 65%Россия, МагаданПо запросуПостоянное предложение, поштучно
Пищевой рыбий жир в форме TG (standardized 18/12) стандартизированный с ПНЖК не менее 35%Россия, Магадан1 500 руб.Постоянное предложение, поштучно
Пищевой рыбий жир в форме TG 1611 с ПНЖК не менее 30%Россия, МагаданПо запросуЗапрос КП
Биг-бэг 2-х стропный б/у для переработкиРоссия, Челябинская областьЖдёт отклика Бюджет не определён
Подборки товаров в категории Конвейерное оборудование
Смесители промышленныеДробильно-сортировочное оборудованиеРоликовые конвейерыГидроциклоныПресс - ГрануляторДозаторы автоматическиеПокрасочные камерыЛавные скребковые конвейерыКовшовые конвейерыЦентрифугиКонвейерные ленты и плоские транспортерные ремниЛенточные конвейерыГрунтосмесительные установкиАсфальтобетонные заводыКомплектующиеДля выдува тарыЛинии грануляцииКонвейерное оборудованиеЭлектрогидравлические прессыСкребковые конвейерыНатяжные станцииВиброоборудованиеАсфальтовые заводыВинтовые конвейерыЛенточные конвейерыКонвейеры пластинчатыеКомплектующие для конвейеровОборудование для розлива жидкостейСушильное оборудование Укупорочные машиныФормовочные автоматыЦепные конвейерыЖелобчатые конвейерыЧиллерыПластинчатые конвейерыПитателиАвтоматизированные заправочные стендыЛинии для производстваБетонные заводы















