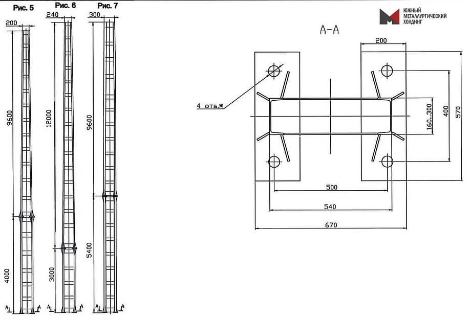
Стойки для опор контактных сетей МГП3 серия 6226и
Условия передачи
Описание
Характеристики
- покрытие
- оцинкованная
- тип
- МГП3
- серия
- 6226и
Рекомендации для вас
Постоянное предложение, поштучно
Набор ручек гелев. Deli C6600S-T прозрачный/черный d=0.5мм черн. черн. пакет (2шт) кругл. резин. манжета черныйРоссия, Санкт-ПетербургRUB 50Постоянное предложение, поштучно
Плашка М10х1,25 (6g) HSS UFS с поверкойг Москва, пер СемёновскийRUB 1,620








