Скруббер-бутара СБ 80-120
Условия передачи
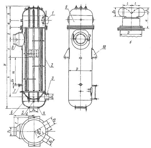
Описание
Характеристики
Рекомендации для вас
Постоянное предложение, поштучно
Подогреватель сетевой воды ПСВ 315 3 23Россия, Свердловская областьПо запросуПостоянное предложение, поштучно
Сейф офисный Deli ET587 огнестойкий 420x380x300 мм электронный/ключевойМосква, 1-ая ДубровскаяRUB 19,714Постоянное предложение, поштучно
Саморез металл/металл 3.5х11 сверлоконечный цинк 500 штРоссия, Санкт-ПетербургRUB 325














