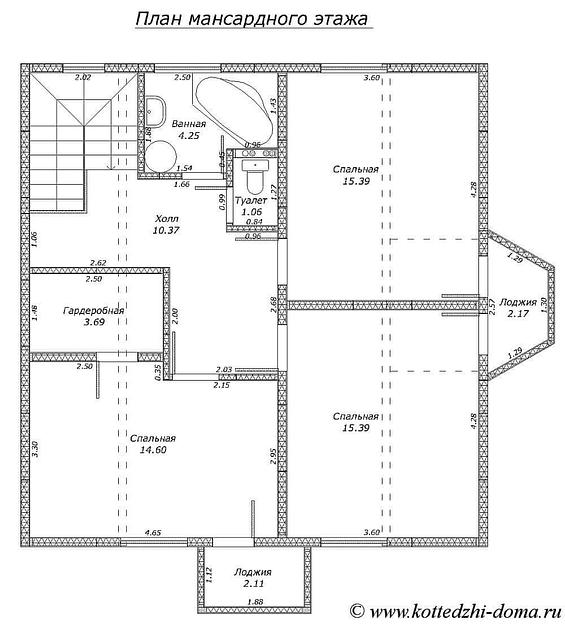
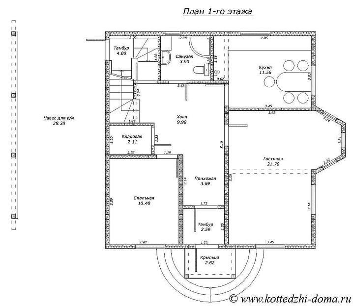
Коттедж 141,5 м² под заказ
Условия передачи
Описание
Характеристики
- Расчетная зимняя температура наружного воздуха
- -32 °C
- Расчетная снеговая нагрузка
- 2,4 кПа
- Нормативный скоростной напор ветра
- 0,30 кПа
- Степень огнестойкости здания по СниП
- 21-01-97-V
- Степень конструктивной пожарной опасности по СниП
- 21-01-97-С2
- Степень функциональной пожарной опасности по СниП
- 21-01-97-Ф1,4
- Общая площадь
- 141,5 м²
- Количество этажей
- 2
Рекомендации для вас
Постоянное предложение, поштучно
Пищевой рыбий жир rTG 4020 с ПНЖК не менее 65%Россия, МагаданПо запросуПостоянное предложение, поштучно
Пищевой рыбий жир в форме TG (standardized 18/12) стандартизированный с ПНЖК не менее 35%Россия, Магадан1 500 руб.Постоянное предложение, поштучно
Пищевой рыбий жир в форме TG 1611 с ПНЖК не менее 30%Россия, МагаданПо запросуЗапрос КП
Биг-бэг 2-х стропный б/у для переработкиРоссия, Челябинская областьЖдёт отклика Бюджет не определён










