Проект дома «Финляндия L» базовая
Условия передачи
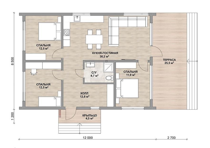
Описание
Характеристики
- Наружная отделка
- Планкен с покраской в два слоя на производстве
- Настил кровли
- Кликфальц PRO 0,45 мм
- Двери
- Портальные ПВХ с усиленной фурнитурой
- Окна
- ПВХ, 2-х камерный стеклопакет, 4-х камерный профиль
- Материал каркаса
- Строганная доска камерной сушки
- Габариты каркаса
- 40х140 мм
- Шаг каркаса
- 590 мм
- Лаги пола и стропильная система
- Строганная доска камерной сушки
- Габариты лаги
- 40х190 мм
- Шаг лаги
- 590 мм
- Утепление пола и потолка
- Isover 200 мм
- Звукоизоляция межэтажного перекрытия
- Isover 200 мм
- Утепление стен по периметру дома
- Isover 150 мм + панели GTS-9
- Внутренняя отделка
- Gyproc Strong 15 мм
- Звукоизоляция перегородок
- Isover 150 мм
- Терраса
- Деревянная террасная доска с покраской
- Водосточная система
- Металлическая на металлических кронштейнах
- Доставка и сборка
- Есть
- Размеры дома
- 9,7х14,7 м
- Площадь дома
- 115 м²
- Комплектация
- Базовая
Рекомендации для вас
Постоянное предложение, поштучно
Пищевой рыбий жир rTG 4020 с ПНЖК не менее 65%Россия, МагаданПо запросуПостоянное предложение, поштучно
Пищевой рыбий жир в форме TG (standardized 18/12) стандартизированный с ПНЖК не менее 35%Россия, Магадан1 500 руб.Постоянное предложение, поштучно
Пищевой рыбий жир в форме TG 1611 с ПНЖК не менее 30%Россия, МагаданПо запросуЗапрос КП
Биг-бэг 2-х стропный б/у для переработкиРоссия, Челябинская областьЖдёт отклика Бюджет не определён












