Проект дома «Финляндия M» домокомплект
Условия передачи
Описание
Характеристики
- Материал каркаса
- Строганная доска камерной сушки
- Габариты каркаса
- 40х140 мм
- Шаг каркаса
- 590 мм
- Лаги пола и стропильная система
- Строганная доска камерной сушки
- Габариты лаги
- 40х190 мм
- Шаг лаги
- 590 мм
- Утепление пола и потолка
- Isover 200 мм
- Звукоизоляция межэтажного перекрытия
- Isover 200 мм
- Утепление стен по периметру дома
- Isover 150 мм + панели GTS-9
- Внутренняя отделка
- Gyproc Strong 15 мм
- Звукоизоляция перегородок
- Isover 150 мм
- Терраса
- Деревянная террасная доска с покраской
- Доставка и сборка
- Есть
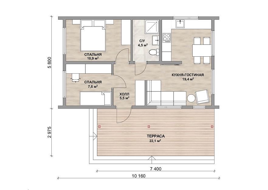
- Размеры дома
- 10х9 м
- Площадь дома
- 70 м²
- Комплектация
- Домокомплект
Рекомендации для вас
Постоянное предложение, поштучно
Биологически активная добавка Fohow капсулы «Сюэчинфу Фохоу» ОПТРоссия, МоскваПо запросуПостоянное предложение, партия
Фасадная доска «Термоясень» (косой планкен) оптРоссия, МоскваПо запросу






















