Проект дома «Финляндия XL» базовая
Условия передачи
Описание
Характеристики
- Наружная отделка
- Планкен с покраской в два слоя на производстве
- Настил кровли
- Кликфальц PRO 0,45 мм
- Двери
- Портальные ПВХ с усиленной фурнитурой
- Окна
- ПВХ, 2-х камерный стеклопакет, 4-х камерный профиль
- Материал каркаса
- Строганная доска камерной сушки
- Габариты каркаса
- 40х140 мм
- Шаг каркаса
- 590 мм
- Лаги пола и стропильная система
- Строганная доска камерной сушки
- Габариты лаги
- 40х190 мм
- Шаг лаги
- 590 мм
- Утепление пола и потолка
- Isover 200 мм
- Звукоизоляция межэтажного перекрытия
- Isover 200 мм
- Утепление стен по периметру дома
- Isover 150 мм + панели GTS-9
- Внутренняя отделка
- Gyproc Strong 15 мм
- Звукоизоляция перегородок
- Isover 150 мм
- Терраса
- Деревянная террасная доска с покраской
- Водосточная система
- Металлическая на металлических кронштейнах
- Доставка и сборка
- Есть
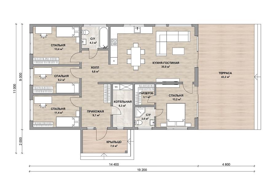
- Размеры дома
- 19,2х11 м
- Площадь дома
- 166 м²
- Комплектация
- Базовая
- Внутренние перегородки
- По проекту
Рекомендации для вас
Постоянное предложение, поштучно
Дрель-шуруповерт Milwaukee M12 FPD2-0 (4933479867)Россия, Санкт-ПетербургRUB 30,309Постоянное предложение, поштучно
Жесткий диск HPE R0Q62A MSA 14TB SAS 12G Midline 7.2K LFF (3.5in) M2 1yr Wty HDDРоссия, Санкт-ПетербургRUB 88,487Постоянное предложение, поштучно
Гирлянда светод. Funray Бахрома IC-72M, 1.6*0.7м, 72 LED,мульти (4цв.) IP20, прозрачный шнур 1,5мРоссия, Санкт-ПетербургRUB 793Постоянное предложение, поштучно
Хайбол 470 мл. d=87 мм. h=144 мм. Нью Йорк /6/24/480/г Москва, б-р КавказскийRUB 389










