Проект дома «Прованс 24» white box
Условия передачи
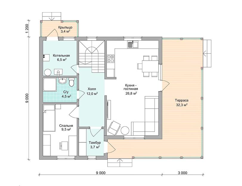
Описание
Характеристики
- Наружная отделка
- Имитация бруса с покраской в два слоя на производстве + профлист крашенный 0,45 мм
- Настил кровли
- Профлист крашенный 0,45 мм
- Двери
- ПВХ с усиленной фурнитурой
- Окна
- ПВХ, 2-х камерный стеклопакет, 4-х камерный профиль
- Материал каркаса
- Строганная доска камерной сушки
- Габариты каркаса
- 40х140 мм
- Шаг каркаса
- 590 мм
- Лаги пола и стропильная система
- Строганная доска камерной сушки
- Габариты лаги
- 40х190 мм
- Шаг лаги
- 590 мм
- Утепление пола и потолка
- Knauf 200 мм
- Звукоизоляция перегородок
- Knauf 200 мм
- Утепление стен по периметру дома
- Knauf 150 мм + панели GTS-9
- Внутренняя отделка
- Gyproc Strong 15 мм
- Звукоизоляция перегородок
- Knauf 150 мм
- Терраса
- Деревянная террасная доска с покраской
- Настил пола
- Пластиковая на металлических кронштейнах
- Доставка и сборка
- Есть
- Размеры дома
- 12х10,2 м
- Площадь дома
- 163 м²
- Комплектация
- White box
- Фундамент
- Забивные железобетонные сваи
- Внутренние перегородки
- По проекту
- Коммуникации
- Отопление, вентиляция, водоснабжение и канализация, электрика, наружные коммуникации, бурение скважины, розетки и выключатели
- Чистовая отделка
- Натяжной потолок, стяжка пола, шпаклевка стен под обои
Рекомендации для вас
Постоянное предложение, поштучно
Картридж PL-106R02611 для принтеров Rank Xerox Phaser 7100 Yellow 9000 копий (2шт/уп) ProfiLineРоссия, Санкт-ПетербургRUB 3,136Постоянное предложение, поштучно
Ноутбук ASUS VivoBook 16 X1605VA-MB875 черный Intel Core i5 13500H 2600MHz/16"/1920x1200/16GB/1024GB SSD/Intel Iris Xe Graphics/Wi-Fi/Bluetooth/Windows 11 ProРоссия, Санкт-ПетербургRUB 71,434Постоянное предложение, поштучно
DKC R5ST0664 Корпус сварной навесной серии ST с М/П Размер: 600 x 600 x 400 мм (В х Ш х Г)Россия, Санкт-ПетербургRUB 19,076Постоянное предложение, поштучно
Exegate EX296205RUS Переходник ExeGate EXE-597 (M.2 M key -> PCI-E x1 v2.0, для установки SSD M.2 M key в слот PCI-E)Россия, Санкт-ПетербургRUB 369















