Арго 1Л/3.2 модульный дом - удлинённый вариант с «мезонином»
Условия передачи
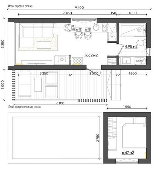
Описание
Характеристики
- Жилая площадь
- 29,1 кв.м. (с лофтом)
- Площадь застройки
- 30 кв.м
- Высота потолков
- 2,65 м
- Высота лофта
- 1,2 м
- Высота наружных стен
- 3,6 м + 1,5 м
- Габариты
- 9,4*3,25*3,6-5,1 (ШхДхВ)
- Срок производства
- 50 дней
Рекомендации для вас
Постоянное предложение, поштучно
Материнская плата Gigabyte B650 AORUS ELITE AXг Алматы, ул Карасай Батыра≈RUB 17,712Постоянное предложение, поштучно
Доска для рисования Silwerhof ламинац. маркер. А4+ 240х329мм двухстор. картон 3ммРоссия, Санкт-ПетербургRUB 130Постоянное предложение, поштучно
Картридж лазерный PL-CF218XL для принтеров HP LaserJet M104/M132 6000 копий ProfiLineРоссия, Санкт-ПетербургRUB 1,164







