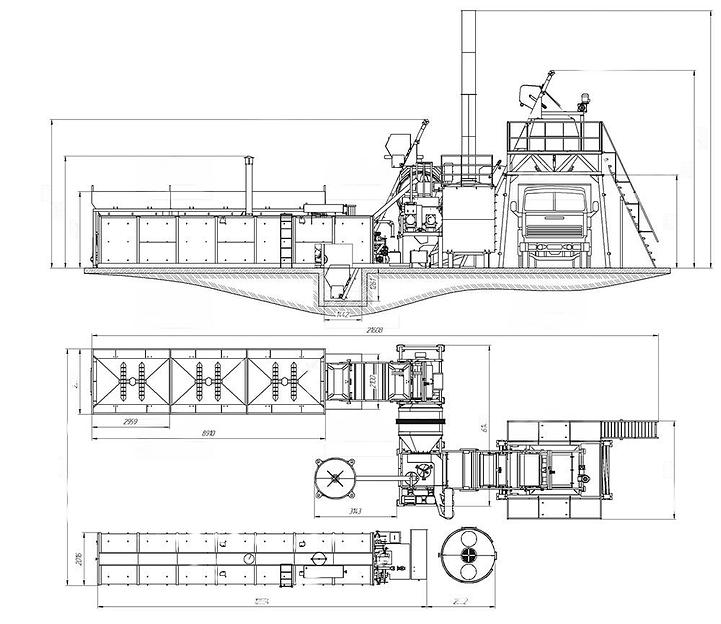
Мобильный асфальтовый завод МАЗ-20
Условия передачи
Описание
Характеристики
- Аудиторская проверка
- Не проводилась
- Производительность, тонн\час
- 20
- Количество и обьем бункеров, кол-во х м. куб
- 3 х 8
- Предел взвешивания инертных, кг
- 2000
- Асфальтосмеситель двухвальный, л
- 750
- Объем приемного бункера готового асфальта, тонн
- 8
- Температура асфальта на выходе, град
- 120...170
- Длина, мм
- 21871
- Ширина, мм
- 8000
- Высота, мм
- 9470
- Масса, кг
- 20000
Документы
БАЗОВАЯ КОМПЛЕКТАЦИЯ МАЗ-20
48 КБ
PDF
Рекомендации для вас
Постоянное предложение, поштучно
Двухвальный бетоносмеситель БП-2Г-750сРоссия, Челябинская область1 859 520 руб.Постоянное предложение, поштучно
Асфальтобетонный завод БМЗ-80Россия, Челябинская область35 082 480 руб.Постоянное предложение, поштучно
Котёл термомасляный КТМ-0.3 Pump BaseРоссия, Челябинская область1 305 960 руб.
Подборки товаров в категории Конвейерное оборудование
Смесители промышленныеДробильно-сортировочное оборудованиеРоликовые конвейерыГидроциклоныПресс - ГрануляторДозаторы автоматическиеПокрасочные камерыЛавные скребковые конвейерыКовшовые конвейерыЦентрифугиКонвейерные ленты и плоские транспортерные ремниЛенточные конвейерыГрунтосмесительные установкиАсфальтобетонные заводыКомплектующиеДля выдува тарыБетонные заводыЛинии грануляцииКонвейерное оборудованиеЭлектрогидравлические прессыСкребковые конвейерыНатяжные станцииВиброоборудованиеВинтовые конвейерыЛенточные конвейерыКонвейеры пластинчатыеКомплектующие для конвейеровОборудование для розлива жидкостейСушильное оборудование Укупорочные машиныФормовочные автоматыЦепные конвейерыЖелобчатые конвейерыЧиллерыПластинчатые конвейерыПитателиАвтоматизированные заправочные стендыЛинии для производстваБетонные заводы







































