Бетонный завод ELKOMIX 120
Транспортные компании
Условия передачи
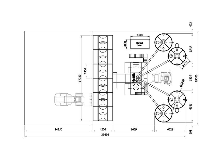
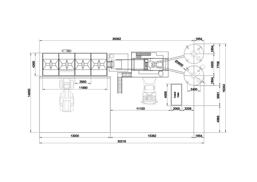
Описание
Характеристики
- Аудиторская проверка
- Не проводилась
- Производительность
- 95-100 м³/час
- Объём, двухвалкового бетоносмесителя
- 3000/2000 л
- Бункера инертных материалов 4×30 м³ рядные с возможностью увеличения
- Бункера инертных материалов регулируют поток материала за счет наличия двухчелюстных затворов. Раскрой и сварка стенок бункеров производится высокоточным роботом
- Наклонный конвейер 26°
- Приемный бункер-накопитель аккумулирует отдозированные материалы, что сокращает процесс дозирования. Скиповый подъемник обеспечивает подачу щебня и песка в смеситель, оснащен двухскоростным двигателем
- Дозатор для воды 0-1000 кг
- Оцинкованная ёмкость. Дозатор для воды оснащен системой компенсации гидроудара DAF (Германия). Оснащен системой подачи воды под давлением через форсунки
- Дозатор цемента 0-2200 кг
- Дозатор цемента имеет люк обслуживания, который дает хороший доступ к дозатору для очистки при налипании материала
- Дозатор химдобавок 0-50 л, два вида
- Две оцинкованные ёмкости, позволяют дозировать независимо две химдобавки
- Дозатор для заполнителей 0-9000 кг
- Оснащен высокоточными тензодатчиками
- Устройство сжатого воздуха
- Компрессор HERTZ (Германия), пневматическая система, система клапанов и пневмоцилиндров
- Металлическая опорная конструкция
- Опорные конструкции служат для установки и размещения смесителя, дозаторов, а также лестниц и платформ
- Электронная система взвешивания
- Система из тензодатчиков и преобразователей, все контакторы SIEMENS
- Кабина оператора и контрольная панель
- Оборудована кондиционером, системой отопления, в ней находится пульт управления и компьютерная система
Документы
ДЕКЛАРАЦИЯ СООТВЕТСТВИЯ
949 КБ
PDF
Рекомендации для вас
Постоянное предложение, поштучно
Стационарный бетонный завод ELKOMIX 200Россия, Московская областьПо запросуПостоянное предложение, поштучно
Стационарный бетонный завод ELKOMIX 180Россия, Московская областьПо запросу
Подборки товаров в категории Конвейерное оборудование
Линии для производстваДозаторы автоматическиеКонвейерное оборудованиеАсфальтовые заводыЭлектрогидравлические прессыПокрасочные камерыГидроциклоныВиброоборудованиеПресс - ГрануляторКонвейеры пластинчатыеКонвейерные ленты и плоские транспортерные ремниЛенточные конвейерыКомплектующие для конвейеровФормовочные автоматыЛенточные конвейерыЧиллерыЛинии грануляцииЦентрифугиБетонные заводыАсфальтобетонные заводыДробильно-сортировочное оборудованиеСушильное оборудование Скребковые конвейерыВинтовые конвейерыКовшовые конвейерыПитателиКомплектующиеНатяжные станцииАвтоматизированные заправочные стендыРоликовые конвейерыЦепные конвейерыПластинчатые конвейерыЛавные скребковые конвейерыЖелобчатые конвейерыСмесители промышленныеОборудование для розлива жидкостейУкупорочные машиныДля выдува тары





































