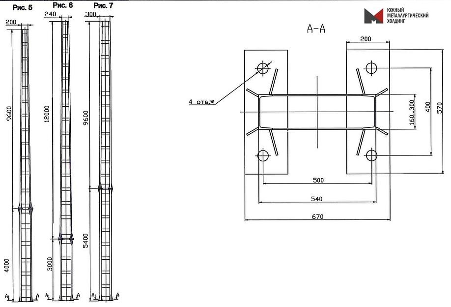
Стойки для опор контактных сетей МГП4 серия 6226и
Условия передачи
Описание
Характеристики
- Аудиторская проверка
- Не проводилась
- покрытие
- оцинкованная
- серия
- 6226и
- тип
- МГП4
Рекомендации для вас
Постоянное предложение, поштучно
Плитка керамическая Kerama Marazzi Бриз синий, полотно 30х40 из 12 частейг. Краснодар, ул. Волгоградская1 058 руб.Постоянное предложение, поштучно
Цепь раздатки 201HV3505RCF-70 Borg Warner 3220A003Приморский край, Уссурийск10 990 руб.Постоянное предложение, поштучно
Фильтр механической очистки воды Ecosoft FP 1465CTг. Алматы, ул. РадловаПо запросуПостоянное предложение, поштучно
Фильтр ТНВД 149575-0001 сетка ZEXEL 4M41Приморский край, Уссурийск286 руб.








