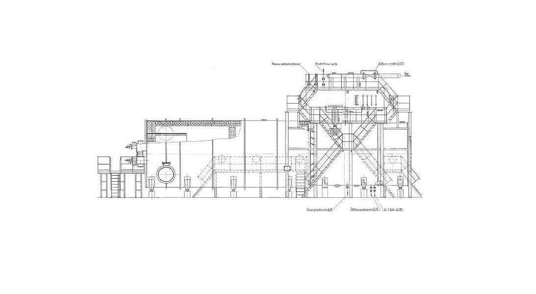
Котел энерготехнологический — Г 1 500БТД
Условия передачи
Описание
Характеристики
- Тепловая мощность
- 47.6 т/ч
- Давление пара
- 24 (2.4) кгс/см² (МПа)
- Температура воды на выходе
- 223 °C
Рекомендации для вас
Постоянное предложение, поштучно
Мышь A4Tech Bloody R80 Plus Skull черный/рисунок оптическая (5000dpi) беспроводная USB (8but)Россия, Санкт-Петербург3 908 руб.Постоянное предложение, партия
Лист нержавеющий зеркало 08Х17 1,25х2,5 мРоссия, Ленинградская областьПо запросуПостоянное предложение, поштучно
Стол разделочно производственный с бортом каркас уголок и с сплошной полкой накладкой СПП-953/1907 (1900x700x850 мм)Московская обл, г Пушкино35 150 руб.









