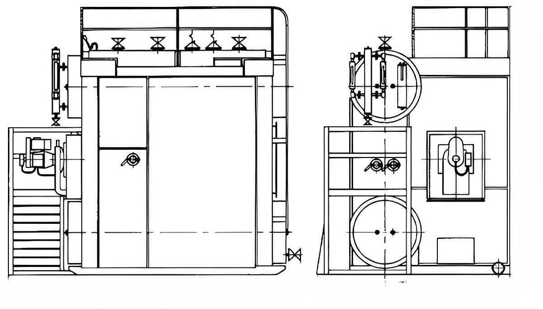
Паровые котлы ДЕ 10/14ГМ
Транспортные компании
Условия передачи
Описание
Характеристики
- Аудиторская проверка
- Не проводилась
- Вид топлива
- Газ\Мазут
- Производительность, т/ч
- 10,0
- Рабочее давление, МПа
- 1,4
- Температура пара, ºС
- 194
- Температура пит. воды, ºС
- 100
- К.П.Д. %
- 91/89
- Масса, т
- 21,7
















