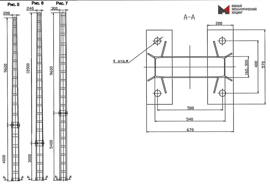
Стойки для опор контактных сетей МГК1 серия 6226и
Transfer koşulları
Açıklama
Özellikler
- тип
- МГК1
- серия
- 6226и
- покрытие
- оцинкованная
Daimi teklif, adetlik
Sensor Tech – универсальное напольное покрытие, толщина 7 мм, Цвет Розовый RAL 4010, Толщина модуля 7 мм.г Пермь, ул КуйбышеваRUB 737Daimi teklif, adetlik
Полиуретановый сайлентблок MB-06-875 PolyBlackПриморский край, УссурийскRUB 547








