Проект дома «Патерсон +»
Транспортные компании
Transfer koşulları
Açıklama
Özellikler
- Denetim
- Yapılmadı
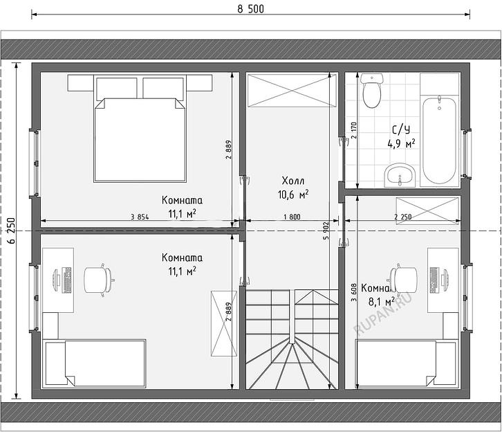
- Площадь
- 106.25 м²
- Габариты
- 8.5×6.3 м
- Дом имеет просторную кухню
- гостиную, сан. узел, техническое помещение и теплый тамбур на первом этаже, на втором этаже располагаются три спальни и сан.узел
- Высота первого этажа. Проект предлагается в комплектации, комфортной для круглогодичного проживания
- 2.8 м
- Толщина панелей
- теплого контура (стены, пол 1 этажа и крыша) выполнены из СИП панелей толщиной 174 мм
- Перегородки
- каркасные из калиброванного сухого, обработанного пиломатериала, толщина перегородок 150 и 100 мм
- Перекрытие между 1 и 2 этажем
- балочное с настилом чернового пола из ОСБ-3 толщиной 22 мм
- Окна
- белые двухкамерные, с энергосберегающим «И» стеклом, с отливами, подоконниками и москитными сетками (в комплектации акционный 2 и акционный 3)
- Покрытие кровли
- металлочерепица Grand Line толщиной 0.5 мм или мягкая битумная черепица Shinglas Кантри. На крыше дома предусмотрены и будут смонтированы 2 вентиляционных выхода















