Коттедж 143 м² под заказ
Transfer koşulları
Açıklama
Özellikler
- Расчетная зимняя температура наружного воздуха
- -32 °C
- Расчетная снеговая нагрузка
- 2,4 кПа
- Нормативный скоростной напор ветра
- 0,30 кПа
- Степень огнестойкости здания по СниП
- 21-01-97-V
- Степень конструктивной пожарной опасности по СниП
- 21-01-97-С2
- Степень функциональной пожарной опасности по СниП
- 21-01-97-Ф1,4
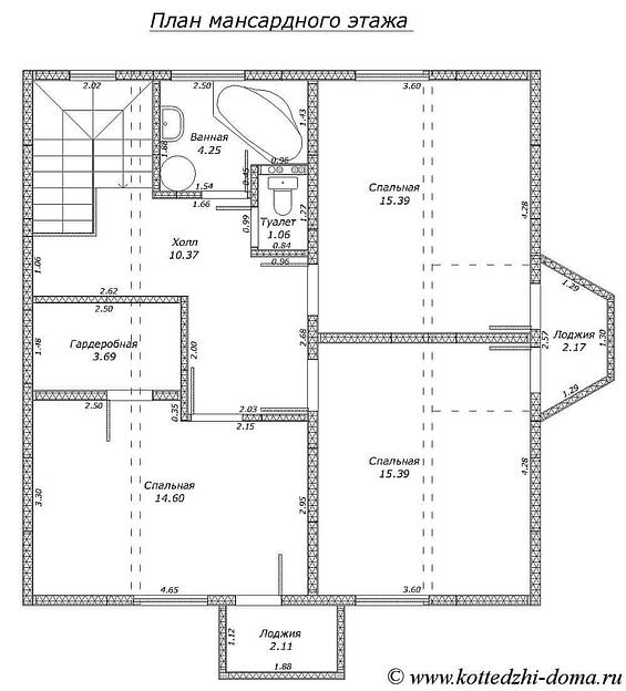
- Общая площадь
- 143 м²
- Количество этажей
- 2
Daimi teklif, adetlik
Картридж NVP совместимый NV-TL-410T для Pantum P3010D/P3010DW/P3300DN/P3300DW/M6700D/M6700DW/M7100DN/M7100DW/M6800FDW (1500k)Россия, Санкт-ПетербургRUB 1.062Daimi teklif, adetlik
Распределитель жидких реагентов с объемом бака 1150 литров в кузов автомобиляХабаровский край, г. ХабаровскRUB 890.000
















