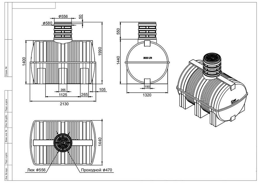
Емкость D 3000 для воды 1875х1440х2130
Shipping condition
Description
Specifications
- Объем
- 3000 л
- Размеры
- 1875х1440х2130 мм
- Материал
- Полиэтилен
Recommendations for you
Permanent offer, piece by piece
Этикетки Avery Zweckform L6141-20 A4 33.9x63.5мм 24шт на листе/100г/м2/20л./белый самоклей. для лазерной печатиРоссия, Санкт-ПетербургRUB 6,600Permanent offer, piece by piece
Чип ELP для Samsung CLP-360/362/363/364/365/367/368/CLX-3300/3302/3303/3304/3305 (MLT-406S-C) Cyan 1K (Китай)Россия, Санкт-ПетербургRUB 77
Подборки товаров в категории Водоснабжение и сантехника
КрепёжФильтрующая загрузка (водоочистка)Запорная арматураКомплектующие для систем водоочисткиКанализацияЗащита от протечек водыКомплектующие водоснобженияПоплавковый уровнемерКольца колодезныеКолонки водоразборныеИзмерительные приборыСантехника и товары для ванной комнатыДетали трубопроводов, хомуты и крепёжЁмкости и резервуары для водыЗапорная арматураСистемы дорожного водоотводаНасосное оборудованиеФильтрыНагревательные системыСчётчикиСтроительство прудовКанализацияВодостокСтанции повышения давления (СПД) и пожаротушения (СПТ)Водоотведение и дренажЛивневые очистные сооруженияУказатели уровня жидкостиМусоропроводСантехника и товары для ванной комнатыМанжеты и рукава высокого давленияЭлементы трубопроводаПодводка для воды Люки и комплектующие для колодцевФильтры, грязевики, элеваторы и воздухоотводчики Жироуловители и пескоуловителиГидроаккумуляторыСмесителиСистема автоматического поливаМотопомпыТройники, переходники и отводыРевизионные люки Расходные материалы для сантехникиДождепреемникТрубы и фитингиСпецтехникаГидромеханизацияСантехника












