Коттедж 270 м² РП-311 под заказ
Транспортные компании
Shipping condition
Description
Specifications
- Auditing
- Not conducted
- Расчетная зимняя температура наружного воздуха
- -32 °C
- Расчетная снеговая нагрузка
- 2,4 кПа
- Нормативный скоростной напор ветра
- 0,30 кПа
- Степень огнестойкости здания по СниП
- 21-01-97-V
- Степень конструктивной пожарной опасности по СниП
- 21-01-97-С2
- Степень функциональной пожарной опасности по СниП
- 21-01-97-Ф1,4
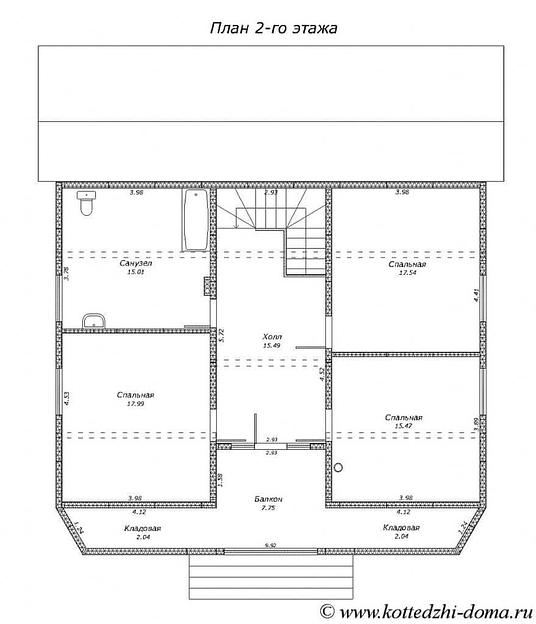
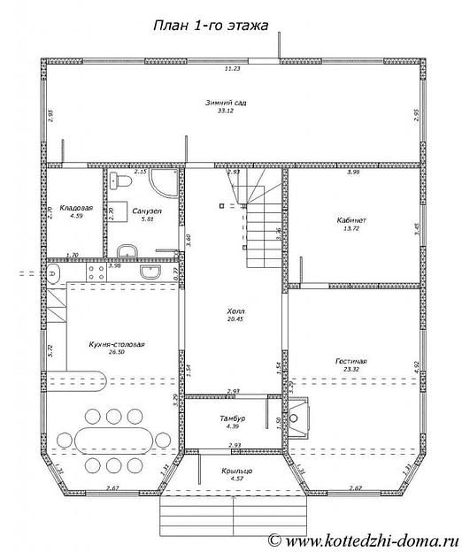
- Общая площадь
- 270 м²
- Количество этажей
- 2
Recommendations for you
Permanent offer, piece by piece
Индивидуальное проектирование и постройка домов под чистовую отделкуРоссия, УльяновскПо запросуPermanent offer, piece by piece
Устройство газонов Ленинградская областьРоссия, Ленинградская областьПо запросу































