Заправочное устройство HP W1540A
Shipping condition
Description
Specifications
- Тип
- Заправочное устройство
- Назначение
- для лазерных принтеров/МФУ
- Модель
- 154A
- Цвет
- черный
- Производитель печатающих устройств
- HP
- Совместимость
- LJ 1502w/1602w/2502dw/2602sdw
- Ресурс, страниц
- 2500
- Цвет картриджа
- черный
Recommendations for you
Permanent offer, piece by piece
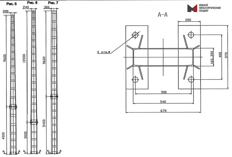
Стойки для опор контактных сетей МГП1 серия 6226иКраснодарский Край, г. КраснодарRUB 20Permanent offer, piece by piece
Тегіс микрометр МКТс-600 0,001 элек. 5-кітап. Тексеру арқылы CHISг Москва, пер СемёновскийRUB 93,607















