Проект дома «Шведский 2» white box
Shipping condition
Description
Specifications
- Наружная отделка
- Имитация бруса с покраской в два слоя на производстве + профлист крашенный 0,45 мм
- Настил кровли
- Профлист крашенный 0,45 мм
- Двери
- ПВХ с усиленной фурнитурой
- Окна
- ПВХ, 2-х камерный стеклопакет, 4-х камерный профиль
- Материал каркаса
- Строганная доска камерной сушки
- Габариты каркаса
- 40х140 мм
- Шаг каркаса
- 590 мм
- Лаги пола и стропильная система
- Строганная доска камерной сушки
- Габариты лаги
- 40х190 мм
- Шаг лаги
- 590 мм
- Утепление пола и потолка
- Knauf 200 мм
- Звукоизоляция перегородок
- Knauf 200 мм
- Утепление стен по периметру дома
- Knauf 150 мм + панели GTS-9
- Внутренняя отделка
- Gyproc Strong 15 мм
- Звукоизоляция перегородок
- Knauf 150 мм
- Терраса
- Деревянная террасная доска с покраской
- Настил пола
- Пластиковая на металлических кронштейнах
- Доставка и сборка
- Есть
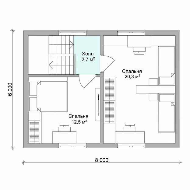
- Размеры дома
- 8х10 м
- Площадь дома
- 100 м²
- Комплектация
- White box
- Фундамент
- Забивные железобетонные сваи
- Внутренние перегородки
- По проекту
- Коммуникации
- Отопление, вентиляция, водоснабжение и канализация, электрика, наружные коммуникации, бурение скважины, розетки и выключатели
- Чистовая отделка
- Натяжной потолок, стяжка пола, шпаклевка стен под обои
Recommendations for you
Permanent offer, piece by piece
Репсовая лента двухсторонняя с тканым краем, 25-50 мм, 197 г/м² белаяг. Москва, улица Кусковская 20АRUB 1,283Permanent offer, piece by piece
Клавиатура для ноутбука Asus X551 X551CA X551MA черная без рамки (плоский Enter)Россия, Санкт-ПетербургRUB 724Permanent offer, piece by piece
Уголок равнополочный 140х140 толщ 10 ГОСТ 8509-93Краснодарский Край, г. КраснодарRUB 56,500Permanent offer, piece by piece
Георешетка Меапласт-ОРМ 42.20.1,35ПРоссия, Московская областьПо запросу














