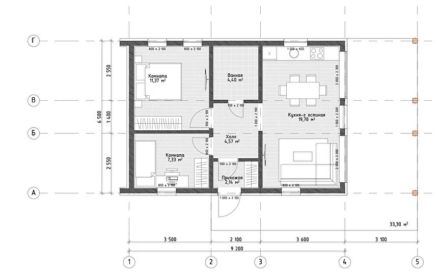
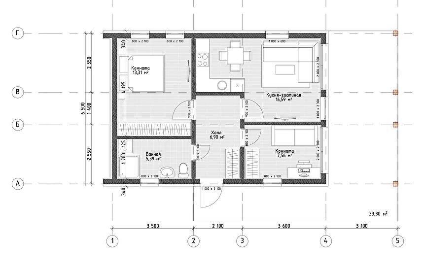
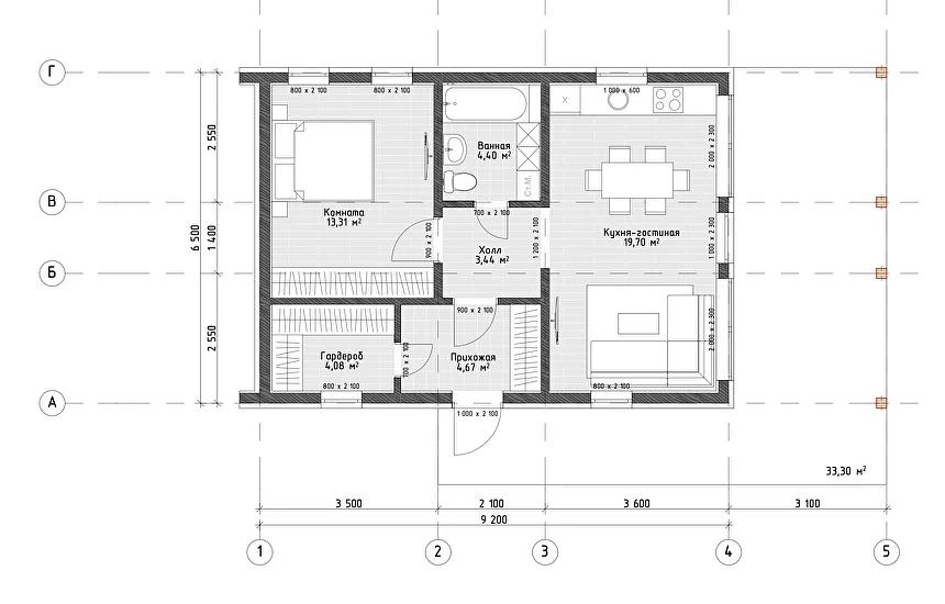
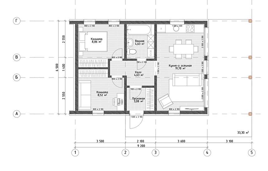
Строительство каркасного дома по проекту «Оля»
Shipping condition
Description
Specifications
- Auditing
- Not conducted
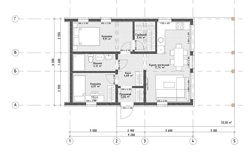
- Пятно застройки
- 93 м²
- Тёплый контур
- 60 м²
- Количество проживающих
- 2-4 человека
- Фундамент
- Винтовой
- Каркас
- Сухая строганная доска
- Утепление
- Минплита Knauf
- Кровля
- Профнастил с покрытием Viking
- Окна
- Панорамные с ламинацией
- Клеёные колонны и ригели
- Имеются
- Внешняя отделка
- Планкен хвойных пород
- Фонари фасадного освещения
- Имеются
- Террасная доска и ступени
- Лиственница
Recommendations for you
Permanent offer, piece by piece
Строительство модульного дома по проекту «Dacha free»Россия, Тюменский районПо запросуPermanent offer, piece by piece
Строительство каркасного дома по проекту «Оля»Россия, Тюменский районПо запросуPermanent offer, piece by piece
Строительство каркасного дома по проекту «Даша»Россия, Тюменский районПо запросу






































