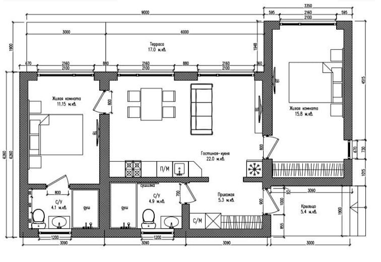
Арго 4/3.2 - Растущий модульный дом
Shipping condition
Description
Specifications
- Auditing
- Not conducted
Recommendations for you
Permanent offer, piece by piece
Строительство модульного дома по проекту «Dacha free»Россия, Тюменский районПо запросуPermanent offer, piece by piece
Строительство каркасного дома по проекту «Оля»Россия, Тюменский районПо запросу


























