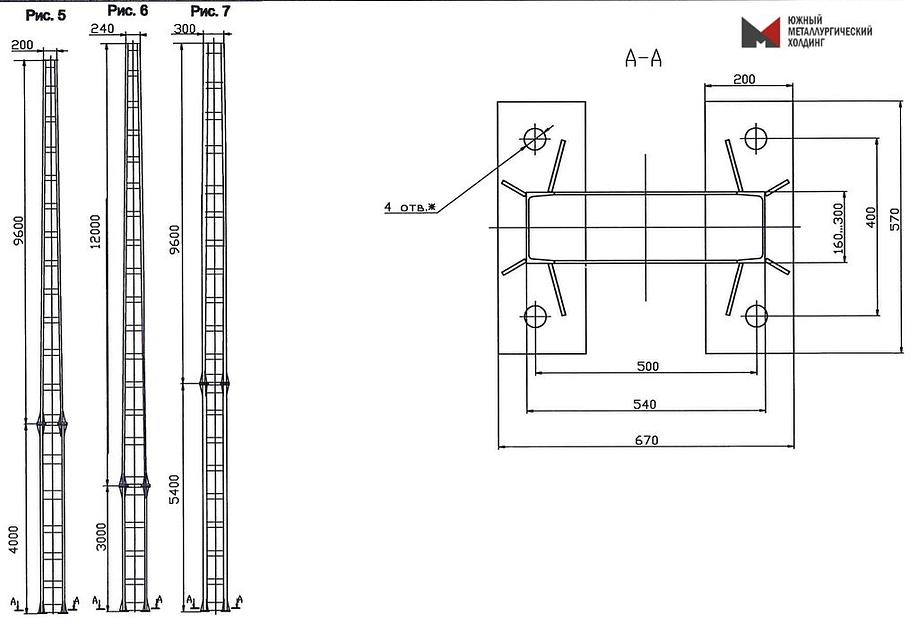
Стойки для опор контактных сетей МГК3 серия 6226и
O'tkazish shartlari
Tavsif
Xarakteristikalar
- покрытие
- оцинкованная
- серия
- 6226и
- тип
- МГК3
Siz uchun tavsiyalar
Doimiy taklif, donalab
Трусы женские Nb кружевные слипы с низкой посадкой оптРоссия, МоскваTalab bo'yicha



























