Коттедж 150 м² под заказ
Транспортные компании
O'tkazish shartlari
Tavsif
Xarakteristikalar
- Auditorlik tekshiruvi
- Amalga oshirilmadi
- Расчетная зимняя температура наружного воздуха
- -32 °C
- Расчетная снеговая нагрузка
- 2,4 кПа
- Нормативный скоростной напор ветра
- 0,30 кПа
- Степень огнестойкости здания по СниП
- 21-01-97-V
- Степень конструктивной пожарной опасности по СниП
- 21-01-97-С2
- Степень функциональной пожарной опасности по СниП
- 21-01-97-Ф1,4
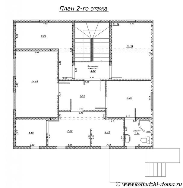
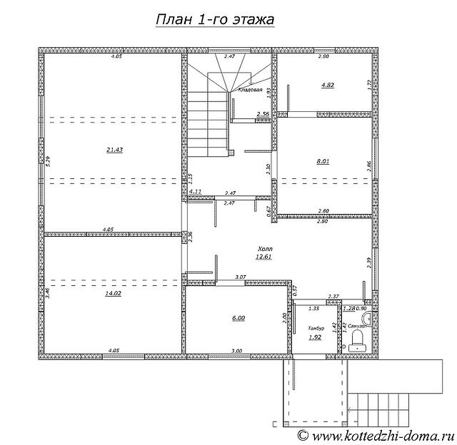
- Общая площадь
- 150 м²
- Количество этажей
- 2
Siz uchun tavsiyalar
Doimiy taklif, donalab
Индивидуальное проектирование и постройка домов под чистовую отделкуРоссия, УльяновскTalab bo'yichaDoimiy taklif, donalab
Устройство газонов Ленинградская областьРоссия, Ленинградская областьTalab bo'yicha































