О производителе
Группа компаний «Екатеринодарстрой» уже больше 25 лет является одним из лидеров российского рынка по производству промышленного оборудования. Мы изготавливаем всю линейку технического оснащения бетонных и асфальтобетонных заводов, полный спектр дробильно-сортировочного оборудования, строительные лаборатории и металлоконструкции.
Фотографии
Все предложения
По релевантности
Стоимость
Местоположение
Вид предложения
Подрядчики
Получение
Oчистить всё
Постоянное предложение, поштучно
Растворобетонный узел РБУ ЕС-50 СтационарРоссия, КраснодарПо запросуПостоянное предложение, поштучно
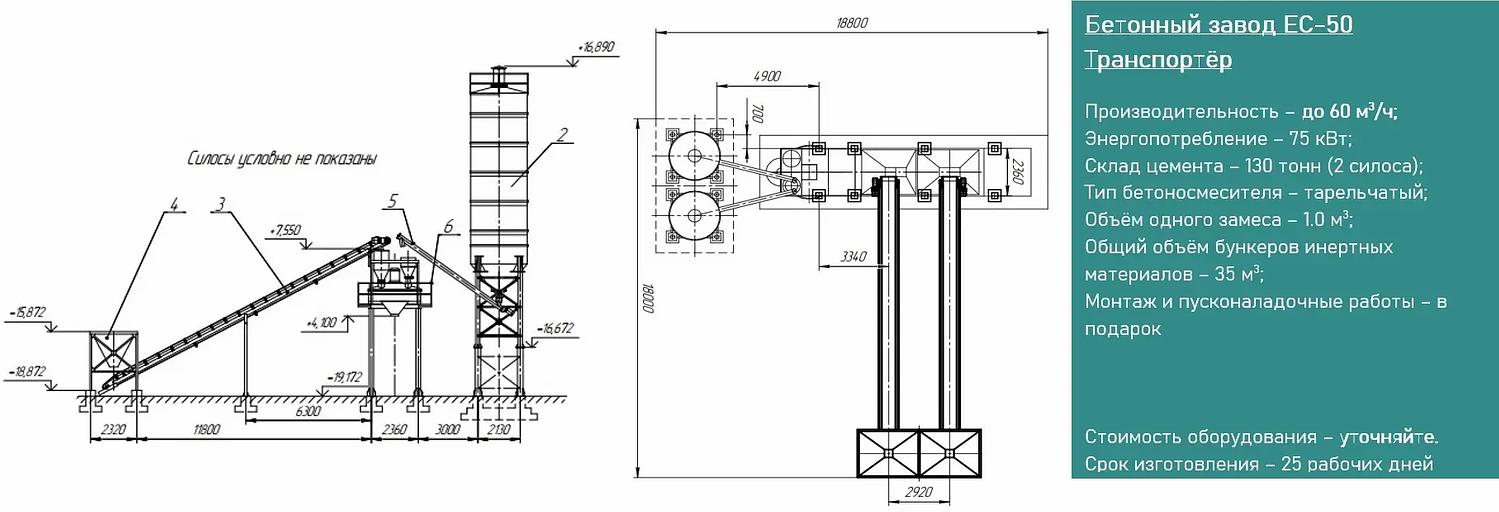
Растворобетонный узел РБУ ЕС-50 ТранспортёрРоссия, КраснодарПо запросуПостоянное предложение, поштучно
Мобильный растворобетонный узел РБУ ЕС-50 КомпактРоссия, КраснодарПо запросу





























































