Коттедж 294,2 м² под заказ
Транспортные компании
Условия передачи
Описание
Характеристики
- Аудиторская проверка
- Не проводилась
- Расчетная зимняя температура наружного воздуха
- -32 °C
- Расчетная снеговая нагрузка
- 2,4 кПа
- Нормативный скоростной напор ветра
- 0,30 кПа
- Степень огнестойкости здания по СниП
- 21-01-97-V
- Степень конструктивной пожарной опасности по СниП
- 21-01-97-С2
- Степень функциональной пожарной опасности по СниП
- 21-01-97-Ф1,4
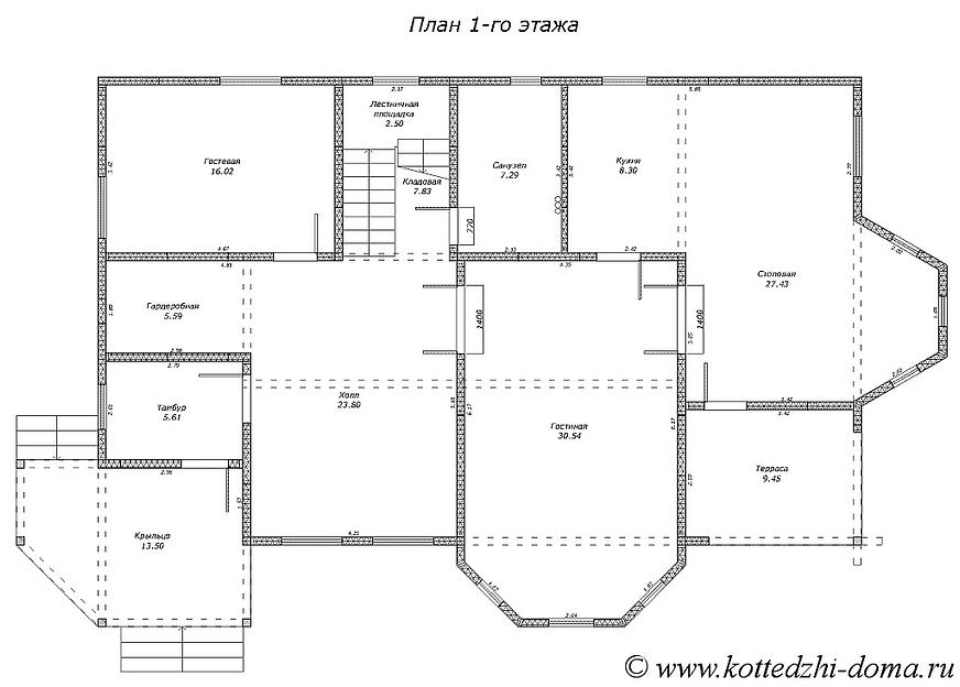
- Общая площадь
- 294,2 м²
- Количество этажей
- 2
Рекомендации для вас
Постоянное предложение, поштучно
Индивидуальное проектирование и постройка домов под чистовую отделкуРоссия, УльяновскПо запросуПостоянное предложение, поштучно
Технический надзор процесса строительстваКазахстан, АлматыПо запросуПостоянное предложение, поштучно
Устройство газонов Ленинградская областьРоссия, Ленинградская областьПо запросу






























