Проектирование каркасного дома
Условия передачи
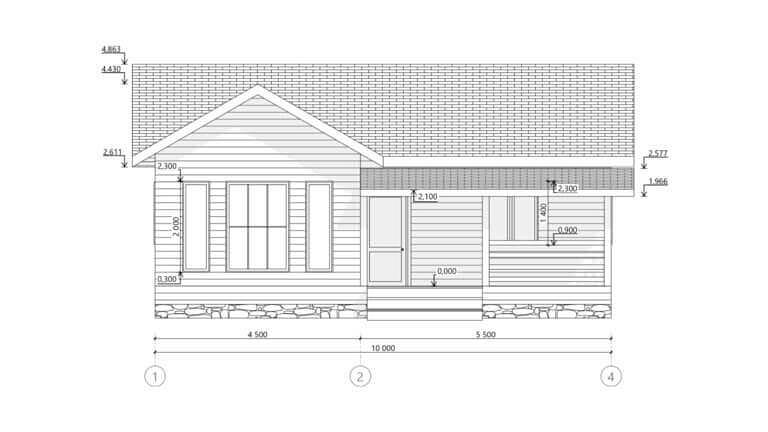
Описание
Характеристики
- Аудиторская проверка
- Не проводилась
- Основная функция
- получение проекта своего идеального дома
- Планировка дома
- есть
- Планировка фасадов
- есть
- План кровли
- есть
- Разрезы дома по осям
- есть
- Ведомость оконных и дверных проемов
- есть
- 3D визуализация дома (модель экстерьера)
- есть
- 3D модель деревянного каркаса
- есть
- Схема монтажа лаг цокольного перекрытия + 3D модель
- есть
- План монтажа стен + 3D модель
- есть
- Схема сборки стен, развертки + 3D модель
- есть
- Схема монтажа лаг межэтажного/чердачного перекрытия + 3D модель
- есть
- Схема монтажа опорных конструкций кровли + 3D модель
- есть
- Схема монтажа стропильной системы + 3D модель
- есть
- Схема сборки стен, развертки + 3D модель
- есть
- Схема монтажа опорных конструкций кровли + 3D модель
- есть
- Схема монтажа стропильной системы + 3D модель
- есть
- Схема монтажа конструкций террас
- есть
- Ведомость площадей для отделки дома
- есть
- Спецификация пиломатериалов
- есть
- Файл-bimx эскизного проекта
- есть
- Файл-bimx конструктивного раздела
- есть
Рекомендации для вас
Постоянное предложение, поштучно
Проектирование наружных кабельных сетей 0,4/10 кВКазахстан, АлматыПо запросуПостоянное предложение, поштучно
Проектирование систем вентиляции, кондиционирования и отопленияКазахстан, АлматыПо запросуПостоянное предложение, поштучно
Дизайнерские услуги интерьера, экстерьераКазахстан, АлматыПо запросу
Подборки товаров в категории Ремонт, строительство
Ремонт техникиИзготовление костровых зонИзготовление арматурных изделийПодготовка строительной площадкиСтроительство лестницПлотницкие работыИзготовление небольших сейфовСтроительство гаражей, ангаров, павильоновСтроительство заборов и воротКаркасные дома под ключСтроительные конструкцииИзготовление нестандартных изделийЗаливка бетонаСтроительство фундаментаУтепление домовИзготовление крылец, навесов, и козырьковИзготовление скамеек и решётокОстеклениеИзготовление пружинИзготовление лифтов и подъемниковТрубопроводИзготовление шахт-пакетовБетонные работыУслуги по бурениюУслуги разнорабочегоУкладка покрытий из резиновой крошкиАсфальтированиеПроизводство строительных смесейРемонт москитных сетокРемонт окон
























