Гоммаж Глубокое очищение для лица, шеи и зоны декольте Stem Cells Collection ОПТ
Условия передачи
Описание
Характеристики
Рекомендации для вас
Постоянное предложение, поштучно
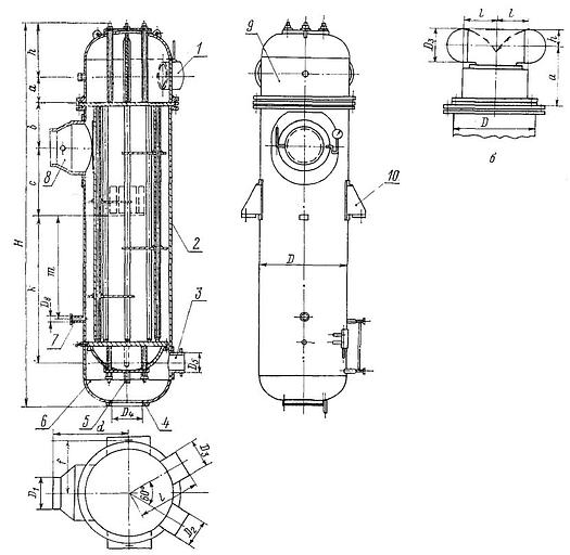
Подогреватель сетевой воды ПСВ 90 7 15Россия, Свердловская областьПо запросуПостоянное предложение, поштучно
Карамель 0,7 л. сироп Оксифрут /1/6/г Москва, б-р Кавказский607 руб.Постоянное предложение, поштучно
Конденсатор 16 мкф, Electroniconг. Москва, ул. Милашенкова 4б120 руб.Постоянное предложение, поштучно
Масло индустриальное И-50А на постоянной основеРоссия, Омск69 600 руб.










